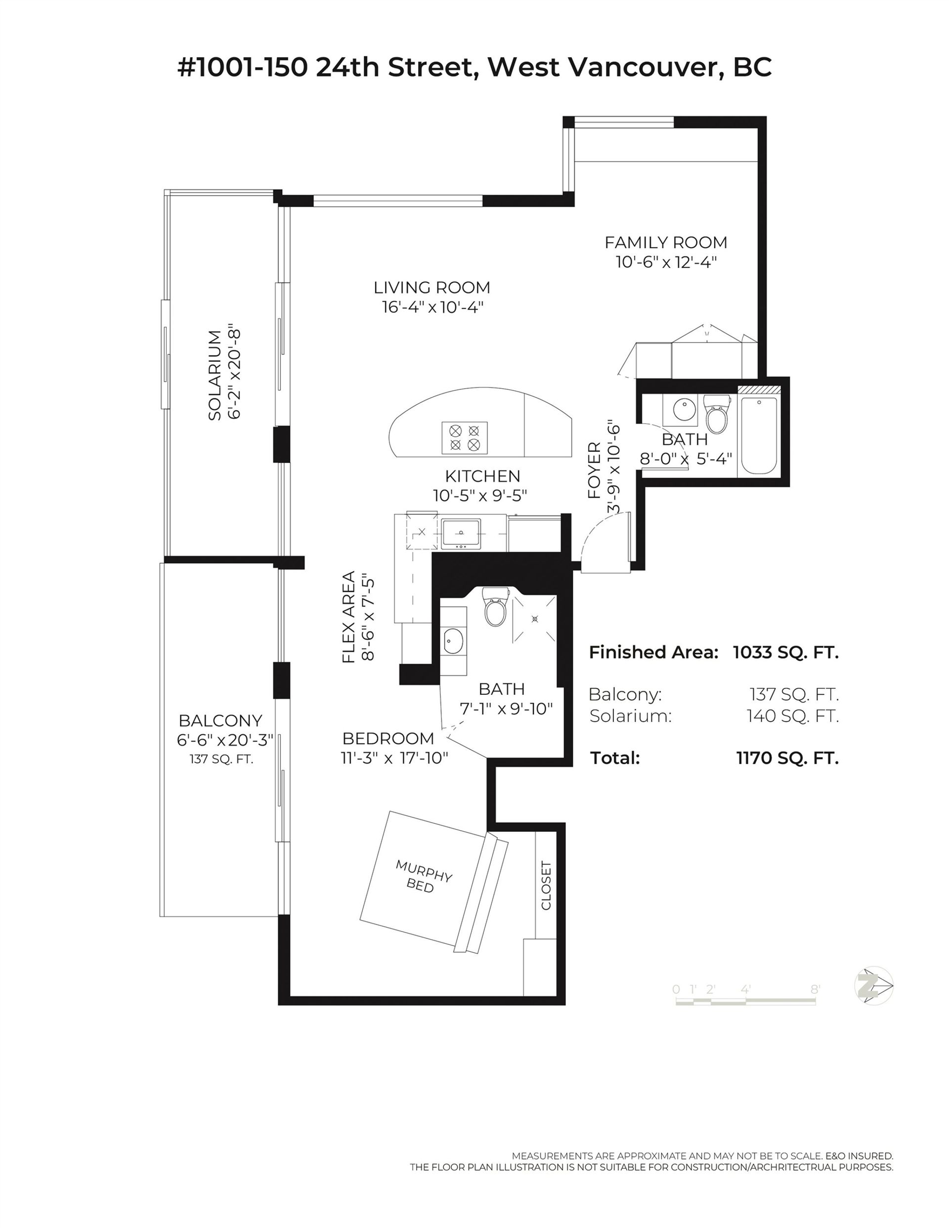
1001-02 - 150 24th Street, Dundarave, West Vancouver

1001-02 - 150 24th Street

Dundarave, West Vancouver

$2,248,000
1 Bedroom
2 Bathrooms
Open (2)
1,310 sqft

About this Condo in Dundarave

The Seastrand! The exclusive Dundarave waterfront address with spectacular and endless views of the ocean, city and sunsets Two units have been seamlessly combined, creating a luxurious 1 bedroom layout with exceptional indoor-outdoor flow. Featuring beautiful hardwood floors, high-end appliances, and elegant lighting, this residence captures the essence of what makes the Seastrand so special. Enjoy panoramic views of the city, UBC, Vancouver Island, and breathtaking sunsets from every room. There’s never a dull moment with these ever-changing vistas. A prime location and an added bonus of a building caretaker, guest suite, resort style pool, two parking and two lockers.

Read More

The Seastrand! The exclusive Dundarave waterfront address with spectacular and endless views of the ocean, city and sunsets Two units have been seamlessly combined, creating a luxurious 1 bedroom layout with exceptional indoor-outdoor flow. Featuring beautiful hardwood floors, high-end appliances, and elegant lighting, this residence captures the essence of what makes the Seastrand so special. Enjoy panoramic views of the city, UBC, Vancouver Island, and breathtaking sunsets from every room. There’s never a dull moment with these ever-changing vistas. A prime location and an added bonus of a building caretaker, guest suite, resort style pool, two parking and two lockers.

More Details
  • MLS®: R3047340
  • Bedrooms: 1
  • Bathrooms: 2
  • Type: Condo
  • Building: 150 E 24th Street, West Vancouver
  • Square Feet: 1,310 sqft
  • Full Baths: 2
  • Half Baths: 0
  • Taxes: $3,044.04
  • Maintenance: $973.70
  • Parking: Open (2)
  • View: Ocean, water, panoramic
  • Basement: None
  • Storeys: 16
  • Year Built: 1963

Contact Leslie now to get started with our next move!

604.354.4580












Address on Google Mapsmap marker icon
Map View
Street View

More About Dundarave, West Vancouver

Latitude: 49.33254975

Longitude: -123.178737671

V7V 4G8


Share Location

Similar Listings